琴似4条6丁目 中古戸建
人気の琴似エリアでわくわくした暮らしを始めませんか♪
登録日/2025年12月23日 更新日/2025年12月24日 次回更新予定日/随時
お問い合わせ番号/ 674
中古戸建
3,490万円
北海道札幌市西区琴似四条6丁目- 建物構造/階建
- 木造/2階建
- 築年月
- 【平成24年】2012年02月 / 築13年
- 最寄駅
-
- 札幌市東西線
- 琴似駅徒歩9分
- 札幌市東西線
- 発寒南駅徒歩13分
- 函館本線
- 琴似駅徒歩17分
- 間取り/面積
-
- 間取り
- 3LDK
- 土地面積
- 147.49m2 / 44.61坪
- 延床面積
- 113.44m2 / 34.31坪
- 延床面積1F
- 60.45m2
- 延床面積2F
- 52.99m2
オススメ
この物件の主な特徴
新築時・増改築時の設計図 平坦地 整形地 閑静な住宅地 前面棟無 都市近郊 市街地が近い 駅まで平坦 2沿線以上利用可 階建 2階建 部屋向き 南東向き 採光面 2面採光 日当り良好 通風良好 LDK広さ 20帖以上 吹抜け オール電化 電気 上水道 公営 汚水 下水道 室内物干し 天井高2.5m以上 フローリング 全居室フローリング クッションフロア 複層ガラス 駐車可能台数 2台可 リビング階段 ダウンライト 間接照明 24時間換気システム 照明器具 エアコン 冷房 暖房 全居室収納 収納スペース 納戸 クローゼット シューズボックス システムキッチン カウンターキッチン キッチンタイプ オープンキッチン IHクッキングヒーター コンロ口数 三口 キッチン入口 2WAY 食器洗乾燥機 独立洗面台 シャンプードレッサー バス広さ 1坪以上 追い焚き シャワー 温水洗浄便座 節水型トイレ 専用庭 南庭 エコポイント対象住宅 省エネ給湯器 全居室複層ガラス 全居室複層サッシ TVインターホ ※設備名をクリックで対象の設備の物件一覧を絞り込みローンシミュレーション
- 物件価格
- 3,490万円
- 金利
- 返済期間
-
年
※物件によってはローン年数が変わる場合がございます。
- 頭金
-
万円
※半角数字でご入力ください。
- ボーナス併用支払い
-
併用する
3490.00万円のうちボーナス返済分
万円
※半角数字でご入力ください。
- 月割返済額
- ボーナス支払い額
(年2回) - 学校区
-
- 小学校区
- 琴似小学校 距離:500m
- 中学校区
- 琴似中学校 距離:750m
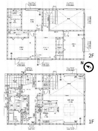
- 間取り詳細
-
階数 区分 広さ 1F LDK 20.3帖 2F 洋 6.5帖 2F 洋 6.0帖 2F 洋 4.5帖 - 駐車場
-
- 駐車可能台数
- 有2台
- 駐車場所
- -
- 分譲駐車場
- -
- 駐車料金
- -
- 税
- -
- タイプ
- カースペース
- 公共設備
-
- ガス
- -
- 水道
- 公営水道
- 汚水
- 公共下水
- 雑排水
- 公共下水
- 接道状況 他
-
- 向
- 一方
- 角地
- -
- 公道
- 北西
- 幅員
- 5.17m
- 接面
- -
- 私道
-
- 私道
- -
- 持分
- -
- 面積(区分)
- -
- 面積
- -
- 面積(単位)
- -
- セットバック面積
-
- 状態
- -
- 幅
- -
- 面積
- -
- 現況
- 居住中
- 引渡時期
- 相談
--- - 地目
- 宅地
- 地勢
- 平坦
- 用途地域
- 第一種住居地域
- - 建ぺい/容積率
- 60%/200%
- 都市計画
- 市街化区域
- 建築許可理由
- -
- 建築確認番号
- -
- リフォーム
- -
-
キッチン:-
浴槽:-
トイレ:-
壁:-
床:-
全室:-
その他:-
洗面所:-
給湯器:-
給排水管:-
内装全面:-
外壁:-
屋根:-
その他:- - リノベーション
- -
- - 土地権利
-
- 権利
- 所有権
- 備考
- -
- 権利金
- -
- 再建築
- -
- 国土法届出
- 不要
- その他制限事項
- 高度地区;緑地保全地区;景観法;宅地造成工事規制区域
備考:- - フラット利用
- -
- 手付金保証
- -
- 町会費
- --
- リボーン21
- -
- 備考
- 地下鉄琴似駅から徒歩9分
小学校やスーパーも徒歩圏内で
便利な暮らしが叶います♪
2階のフリースペースは
壁を設置して居室にすることも可能◎
(費用は買主様負担になります)
建物の裏手にはお庭や物置があるので
趣味を楽しみたい方にもぴったりです☆
売主様がとても丁寧にお住まいなので
新生活のイメージが湧きやすいのも魅力です!
~おすすめポイント~
◇土地面積 147.49平米(約44.61坪)
◇延床面積 113.44平米(約34.31坪)
◇3LDK→4LDKへ変更可能(買主様負担)
◇2台駐車可能(車種による)
◇吹き抜け
◇ウォークインクローゼット
◇エコ住宅
…etc - 取引態様
- 仲介
※金利につきましては各金融機関の審査金利及び融資金利により異なります。
実際の返済額は結果と異なりますので、資産計画の目安としてご利用ください。
詳しいお問い合わせは、こちらよりご相談ください。
(公社)全日本不動産協会 (株)センチュリー21・ジャパン (一社)北海道中小企業家同友会 (公社)札幌北法人会 札幌商工会議所













