【2019年外壁サイディング上張り&屋根塗装済】広々間取で家族がゆったり暮らせる家
登録日/2026年03月03日 更新日/2026年04月20日 次回更新予定日/随時
お問い合わせ番号/ 685
中古戸建
1,680万円
北海道札幌市西区西野十条9丁目- 建物構造/階建
- 木造/2階建
- 築年月
- 【平成1年】1989年10月 / 築36年
- 最寄駅
-
- 札幌市東西線
- 宮の沢駅
- バス乗車11分
- 西野第二バス停
- 停歩7分
- 札幌市東西線
- 発寒南駅
- バス乗車19分
- 中州橋バス停
- 停歩9分
- 函館本線
- 琴似駅
- バス乗車25分
- 西野第二バス停
- 停歩7分
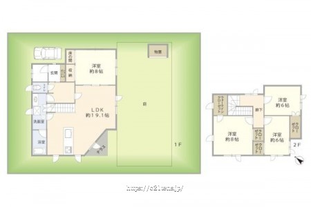
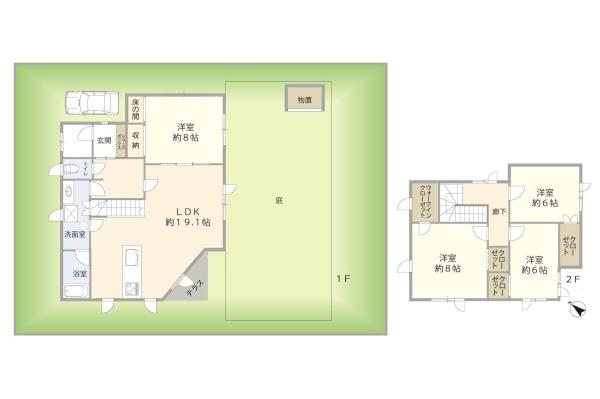
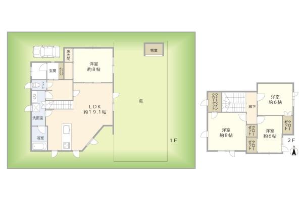
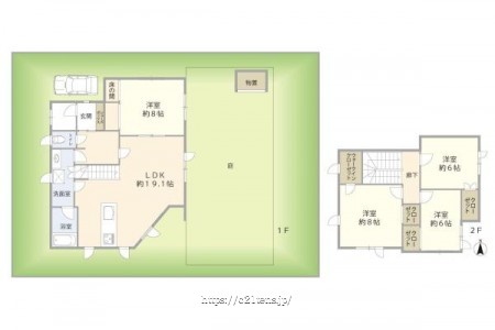
- 間取り/面積
-
- 間取り
- 4LDK
- 土地面積
- 231.16m2 / 69.92坪
- 延床面積
- 111.37m2 / 33.68坪
- 延床面積1F
- 65.83m2
- 延床面積2F
- 45.54m2
オススメ
この物件の主な特徴
整形地 緑豊かな住宅地 閑静な住宅地 土地広さ 50坪以上 前道6m以上 始発駅 2沿線以上利用可 階建 2階建 外壁サイディング 部屋向き 南向き 採光面 2面採光 日当り良好 通風良好 LDK広さ 18帖以上 全居室6帖以上 電気 上水道 公営 汚水 下水道 室内物干し フローリング 全居室フローリング 照明器具 エアコン 冷房 暖房 灯油暖房 FF暖房 全居室収納 収納スペース クローゼット ウォークインクローゼット シューズボックス 床下収納 システムキッチン カウンターキッチン キッチンタイプ オープンキッチン ガスコンロ コンロ口数 三口 独立洗面台 シャンプードレッサー シャワー 温水洗浄便座 節水型トイレ テラス 専用庭 庭10坪以上 融雪槽 融雪対策 TVインターホン リフォーム 外装リフォーム済 山が見える 隣接建物距離2m以上 周辺交通量少なめ 整備された歩道 ゴルフ場が近い スキー場が近い テニスコートが近い 畑 IT重説対応物件 瑕疵保証(不動産会社独自) 保証 ※設備名をクリックで対象の設備の物件一覧を絞り込みローンシミュレーション
- 物件価格
- 1,680万円
- 金利
- 返済期間
-
年
※物件によってはローン年数が変わる場合がございます。
- 頭金
-
万円
※半角数字でご入力ください。
- ボーナス併用支払い
-
併用する
1680.00万円のうちボーナス返済分
万円
※半角数字でご入力ください。
- 月割返済額
- ボーナス支払い額
(年2回) - 学校区
-
- 小学校区
- 西野第二小学校 距離:1200m
- 中学校区
- 西野中学校 距離:1000m
- 間取り詳細
-
階数 区分 広さ 1F LDK 19.1帖 1F 洋 8.0帖 2F 洋 6.0帖 2F 洋 6.0帖 2F 洋 8.0帖 - 駐車場
-
- 駐車可能台数
- 有1台
- 駐車場所
- -
- 分譲駐車場
- -
- 駐車料金
- -
- 税
- -
- タイプ
- カースペース
- 公共設備
-
- ガス
- -
- 水道
- 公営水道
- 汚水
- 公共下水
- 雑排水
- 公共下水
- 接道状況 他
-
- 向
- 一方
- 角地
- -
- 公道
- 北西
- 幅員
- 8.00m
- 接面
- -
- 私道
-
- 私道
- -
- 持分
- -
- 面積(区分)
- -
- 面積
- -
- 面積(単位)
- -
- セットバック面積
-
- 状態
- -
- 幅
- -
- 面積
- -
- 現況
- 居住中
- 引渡時期
- 相談
--- - 地目
- 宅地
- 地勢
- 平坦
- 用途地域
- 第一種低層住居専用地域
- - 建ぺい/容積率
- 50%/80%
- 都市計画
- 市街化区域
- 建築許可理由
- -
- 建築確認番号
- -
- リフォーム
- -
-
キッチン:-
浴槽:-
トイレ:-
壁:-
床:-
全室:-
その他:-
洗面所:-
給湯器:-
給排水管:-
内装全面:-
外壁:リフォーム済
屋根:リフォーム済
その他:- - リノベーション
- -
- - 土地権利
-
- 権利
- 所有権
- 備考
- -
- 権利金
- -
- 再建築
- -
- 国土法届出
- 不要
- その他制限事項
- 特別用途地区;高度地区;緑地保全地区;景観法;宅地造成工事規制区域
備考:- - フラット利用
- -
- 手付金保証
- -
- 町会費
- --
- リボーン21
- -
- 備考
- -
- 取引態様
- 仲介
※金利につきましては各金融機関の審査金利及び融資金利により異なります。
実際の返済額は結果と異なりますので、資産計画の目安としてご利用ください。
詳しいお問い合わせは、こちらよりご相談ください。
(公社)全日本不動産協会 (株)センチュリー21・ジャパン (一社)北海道中小企業家同友会 (公社)札幌北法人会 札幌商工会議所












































