安平町早来71-55 2階建て
苫小牧・新千歳空港へ好アクセス♪吹抜×26帖の大空間LDKと広い庭、10台以上駐車可能の4LDKです♪
登録日/2026年03月16日 更新日/2026年05月07日 次回更新予定日/随時
お問い合わせ番号/ 693
中古戸建
3,780万円
北海道勇払郡安平町早来北進- 建物構造/階建
- 木造/2階建
- 築年月
- 【平成27年】2015年10月 / 築10年
- 最寄駅
-
- 室蘭本線
- 早来駅徒歩25分
- バス乗車6分
- 北進団地前バス停
- 停歩4分
- 室蘭本線
- 苫小牧駅
- バス乗車53分
- 北進団地前バス停
- 停歩4分
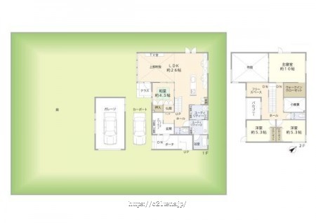
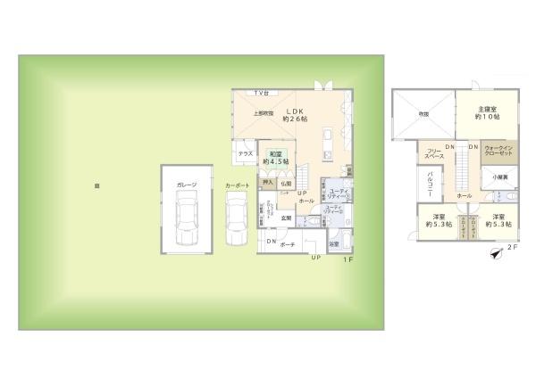
- 間取り/面積
-
- 間取り
- 4SLDK
- 土地面積
- 494.57m2 / 149.60坪
- 延床面積
- 166.44m2 / 50.34坪
- 延床面積1F
- 106.82m2
- 延床面積2F
- 59.62m2
オススメ
この物件の主な特徴
平坦地 整形地 閑静な住宅地 土地広さ 50坪以上 階建 2階建 ペット対応 部屋向き 南東向き 採光面 2面採光 日当り良好 通風良好 LDK広さ 20帖以上 吹抜け 上水道 公営 汚水 下水道 ガス 個別プロパン シャッタ-車庫 駐車可能台数 3台以上可 リビング階段 ダウンライト 独立洗面台 シャンプードレッサー バス広さ 1.5坪以上 追い焚き シャワー トイレ2ヶ所 専用庭 庭10坪以上 ゴルフ場が近い 家庭菜園 畑 IT重説対応物件 瑕疵保証(不動産会社独自) 保証利用可 ※設備名をクリックで対象の設備の物件一覧を絞り込みローンシミュレーション
- 物件価格
- 3,780万円
- 金利
- 返済期間
-
年
※物件によってはローン年数が変わる場合がございます。
- 頭金
-
万円
※半角数字でご入力ください。
- ボーナス併用支払い
-
併用する
3780.00万円のうちボーナス返済分
万円
※半角数字でご入力ください。
- 月割返済額
- ボーナス支払い額
(年2回) - 学校区
-
- 小学校区
- 安平町立早来学園 距離:900m
- 中学校区
- 安平町立早来学園 距離:900m
- 間取り詳細
-
階数 区分 広さ 1F 和 4.5帖 2F 洋 10.0帖 2F 洋 5.3帖 2F 洋 5.3帖 1F LDK 26.0帖 - 駐車場
-
- 駐車可能台数
- 有2台
- 駐車場所
- -
- 分譲駐車場
- -
- 駐車料金
- -
- 税
- -
- タイプ
- ガレージ
- 公共設備
-
- ガス
- 個別プロパン
- 水道
- 公営水道
- 汚水
- 公共下水
- 雑排水
- 公共下水
- 接道状況 他
-
- 向
- 一方
- 角地
- -
- 公道
- 南東
- 幅員
- 9.00m
- 接面
- -
- 私道
-
- 私道
- -
- 持分
- -
- 面積(区分)
- -
- 面積
- -
- 面積(単位)
- -
- セットバック面積
-
- 状態
- -
- 幅
- -
- 面積
- -
- 現況
- 居住中
- 引渡時期
- 相談
--- - 地目
- 宅地
- 地勢
- 平坦
- 用途地域
- 第一種低層住居専用地域
- - 建ぺい/容積率
- 40%/60%
- 都市計画
- 市街化区域
- 建築許可理由
- -
- 建築確認番号
- -
- リフォーム
- -
-
キッチン:-
浴槽:-
トイレ:-
壁:-
床:-
全室:-
その他:-
洗面所:-
給湯器:-
給排水管:-
内装全面:-
外壁:-
屋根:-
その他:- - リノベーション
- -
- - 土地権利
-
- 権利
- 所有権
- 備考
- -
- 権利金
- -
- 再建築
- -
- 国土法届出
- 不要
- その他制限事項
- -
備考:- - フラット利用
- -
- 手付金保証
- -
- 町会費
- --
- リボーン21
- -
- 備考
- -
- 取引態様
- 仲介
※金利につきましては各金融機関の審査金利及び融資金利により異なります。
実際の返済額は結果と異なりますので、資産計画の目安としてご利用ください。
詳しいお問い合わせは、こちらよりご相談ください。
(公社)全日本不動産協会 (株)センチュリー21・ジャパン (一社)北海道中小企業家同友会 (公社)札幌北法人会 札幌商工会議所





































